arrow_back Back to building

Terrasserne 18, 2, 287, 2700 Brønshøj, Denmark

Tenancy information

Address
Terrasserne 18, 2, 287, 2700 Brønshøj, Denmark
Tenancy number
401-5757-287
Takeover condition
As is
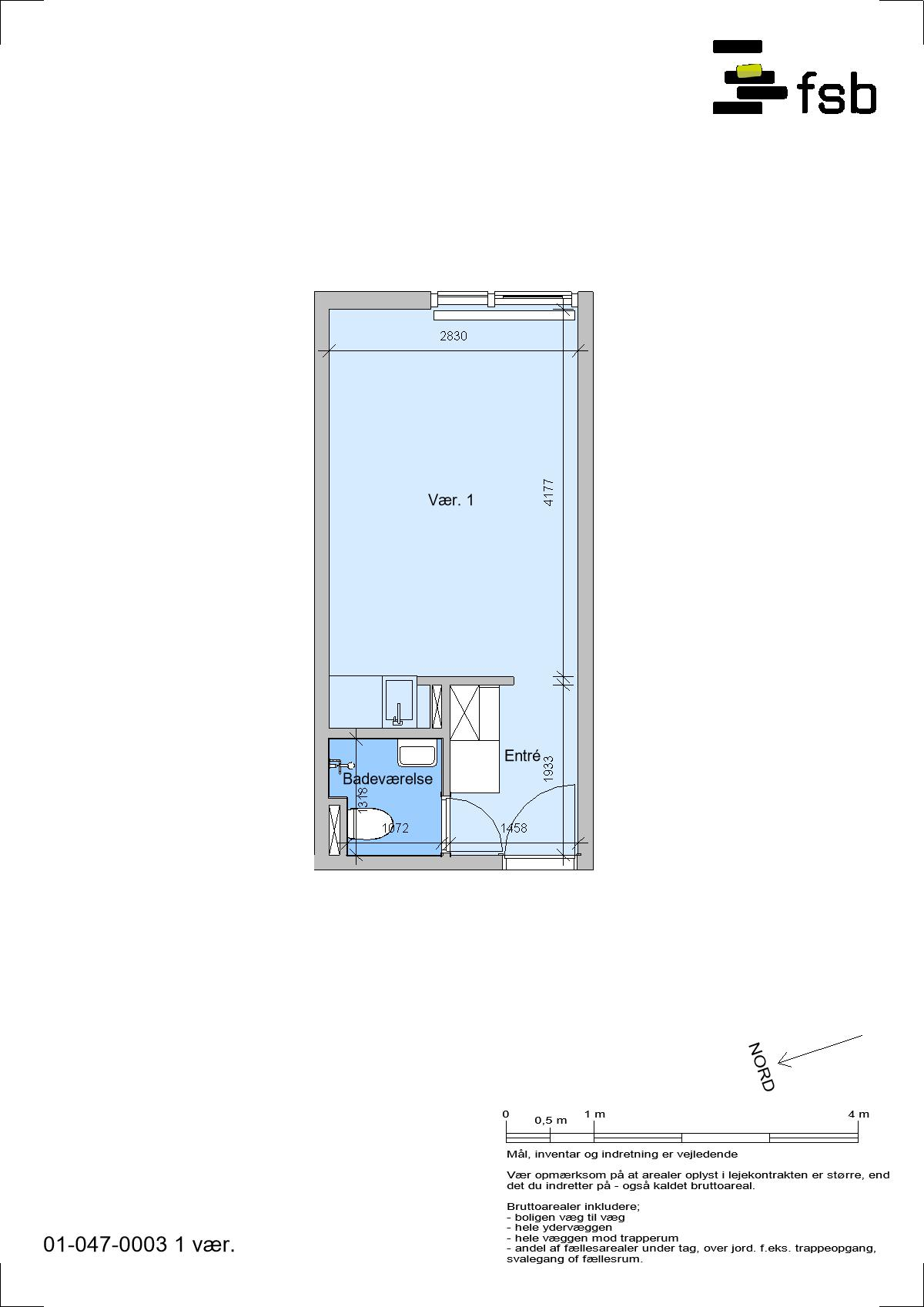
No rooms
1
Area
28
Rent determined
Balance rent
Children allowed
No

Facilities

  • Own toilet
  • Own shower
  • Own kitchen