arrow_back Back to building

Kildehusvej 2B, 1, Lejl. 2, 4000 Roskilde, Denmark

Tenancy information

Address
Kildehusvej 2B, 1, Lejl. 2, 4000 Roskilde, Denmark
Tenancy number
5-408-2102
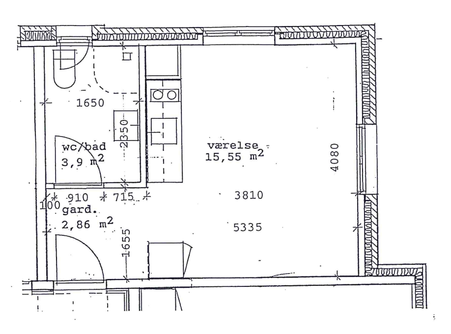
No rooms
1
Area
35
Children allowed
No

Facilities

  • Own toilet
  • Own shower
  • Own kitchen