arrow_back Back to building

Kildehusvej 2D, 2, Lejl. 2, 4000 Roskilde, Denmark

Tenancy information

Address
Kildehusvej 2D, 2, Lejl. 2, 4000 Roskilde, Denmark
Tenancy number
5-408-4202
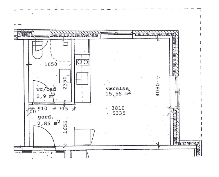
No rooms
1
Area
35
Children allowed
No

Facilities

  • Own toilet
  • Own shower
  • Own kitchen