arrow_back Back to building

Kildehusvej 2F, st., Lejl. 2, 4000 Roskilde, Denmark

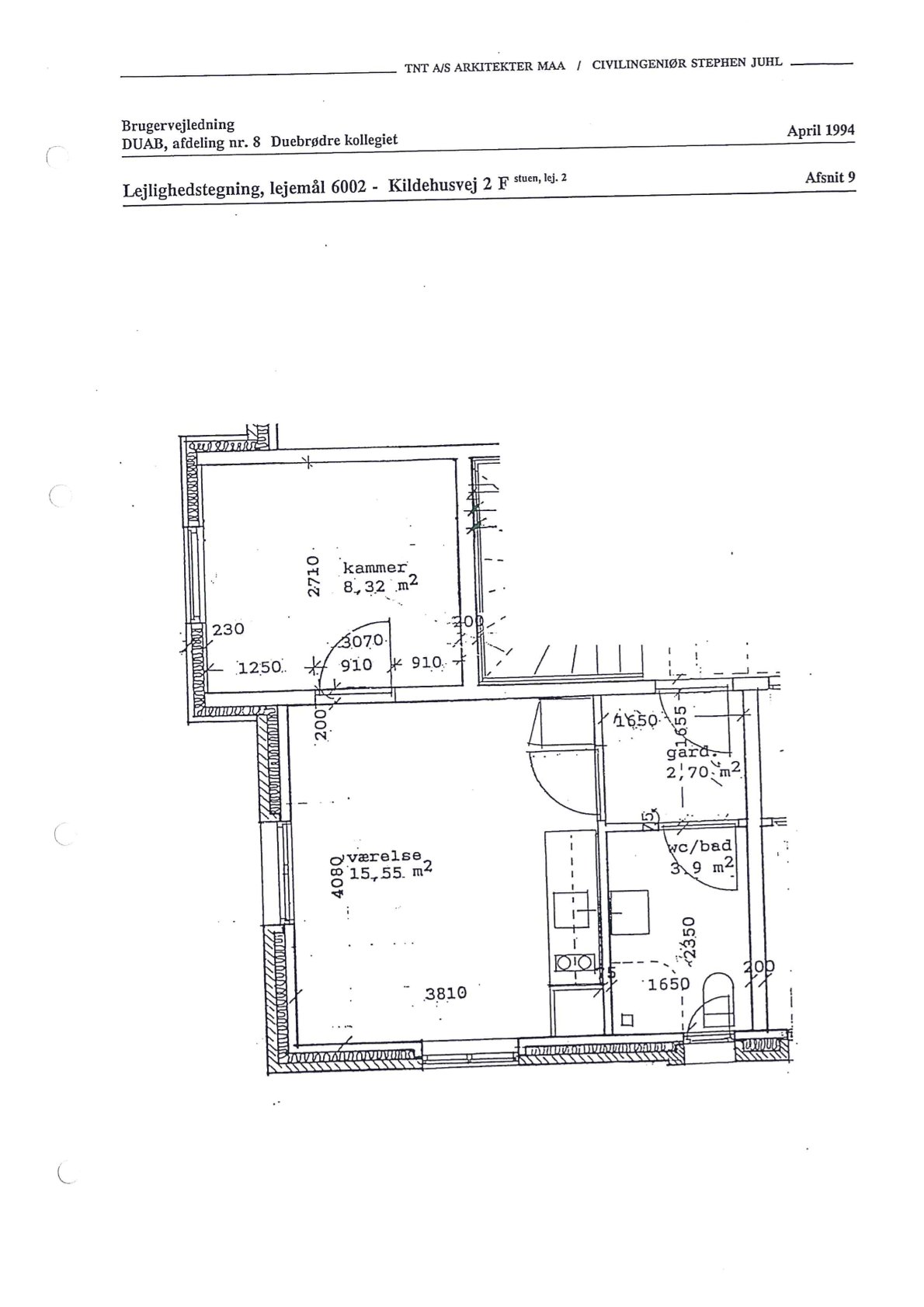
Tenancy information

Address
Kildehusvej 2F, st., Lejl. 2, 4000 Roskilde, Denmark
Tenancy number
5-408-6002
No rooms
1
Area
43
Children allowed
No

Facilities

  • Own toilet
  • Own shower
  • Own kitchen