arrow_back Back to building

Terrasserne 6, 2, 215, 2700 Brønshøj, Denmark

Tenancy information

Address
Terrasserne 6, 2, 215, 2700 Brønshøj, Denmark
Tenancy number
401-5757-215
Takeover condition
As is
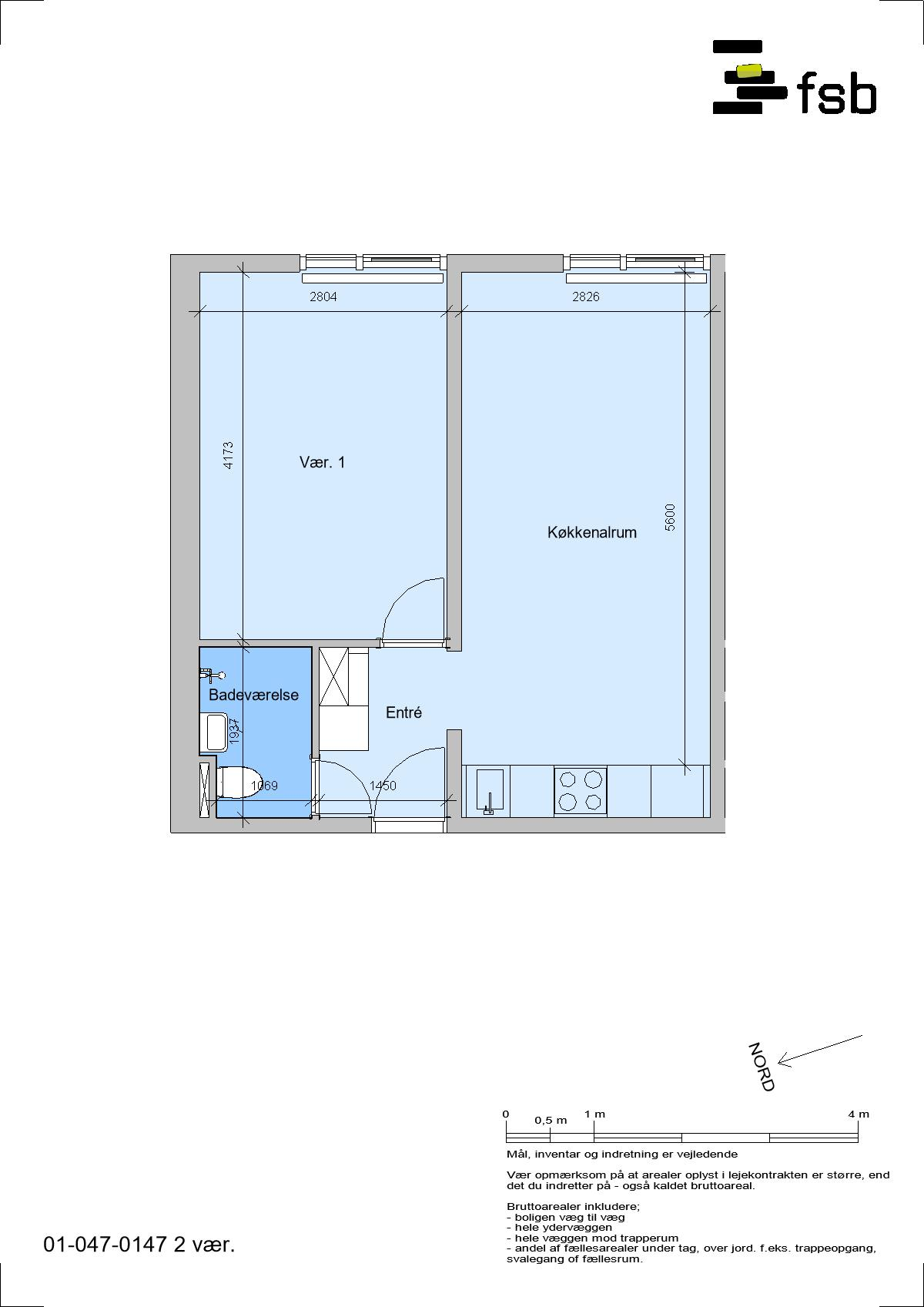
No rooms
2
Area
57
Rent determined
Balance rent
Children allowed
No

Facilities

  • Own toilet
  • Own shower
  • Own kitchen
  • Stove