arrow_back Back to building

Terrasserne 8, 2, 218, 2700 Brønshøj, Denmark

Tenancy information

Address
Terrasserne 8, 2, 218, 2700 Brønshøj, Denmark
Tenancy number
401-5757-218
Takeover condition
As is
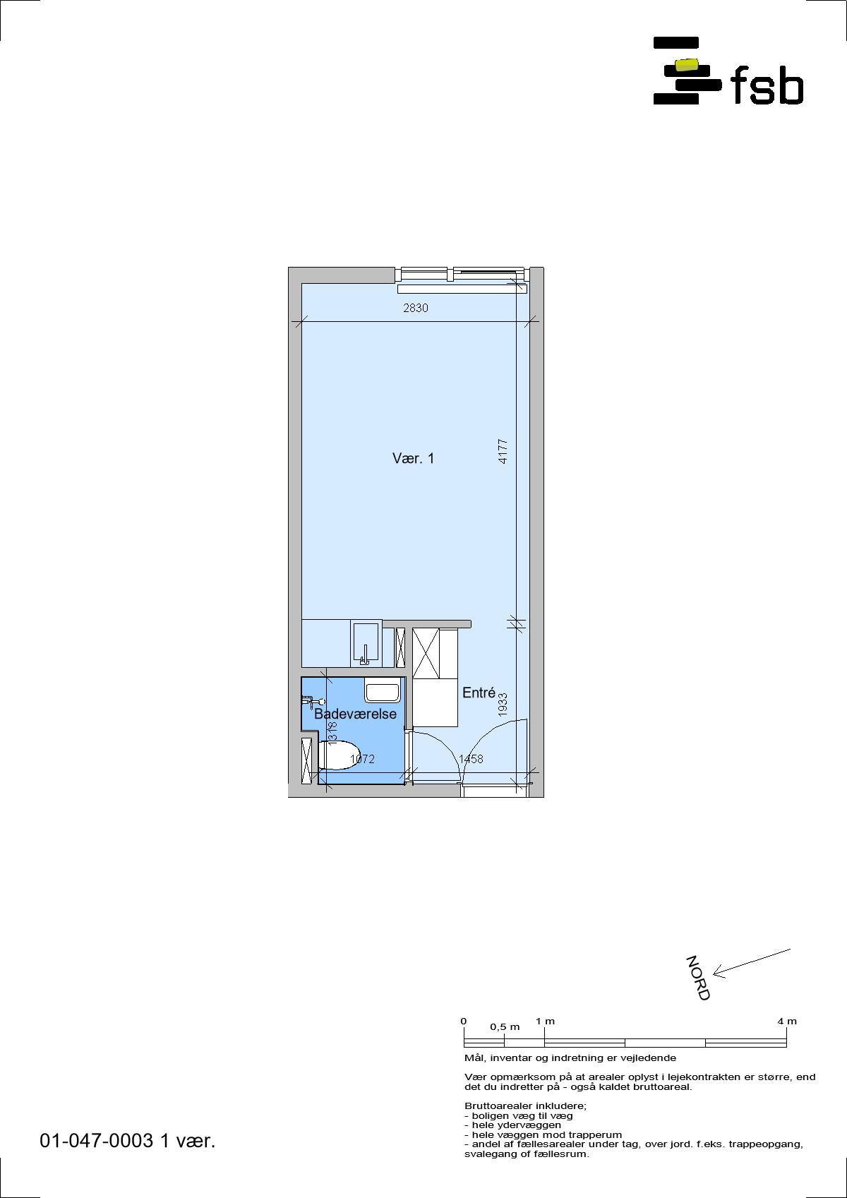
No rooms
1
Area
28
Rent determined
Balance rent
Children allowed
No

Facilities

  • Own toilet
  • Own shower
  • Own kitchen