arrow_back Back to building

Kildehusvej 2A, 2, Lejl. 4, 4000 Roskilde, Denmark

Tenancy information

Address
Kildehusvej 2A, 2, Lejl. 4, 4000 Roskilde, Denmark
Tenancy number
5-408-1204
Takeover condition
As is
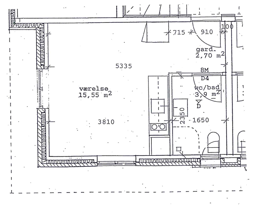
No rooms
1
Area
35
Rent determined
Balance rent
Children allowed
No

Facilities

  • Own toilet
  • Own shower
  • Own kitchen