arrow_back Back to building

Hedeboparken 6, 1, 204, 4000 Roskilde, Denmark

Tenancy information

Address
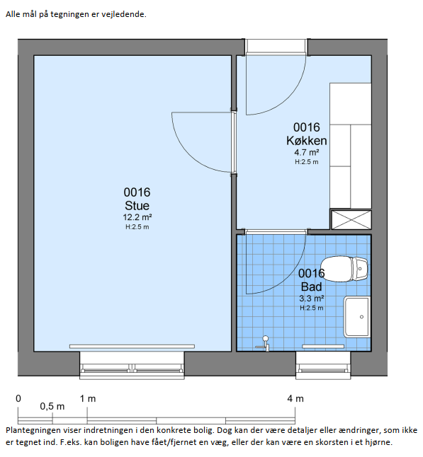
Hedeboparken 6, 1, 204, 4000 Roskilde, Denmark
Tenancy number
402-211-16
Takeover condition
As is
No rooms
1
Area
34
Rent determined
Balance rent
Children allowed
No

Facilities

  • Own toilet
  • Own shower
  • Own kitchen