arrow_back Back to building

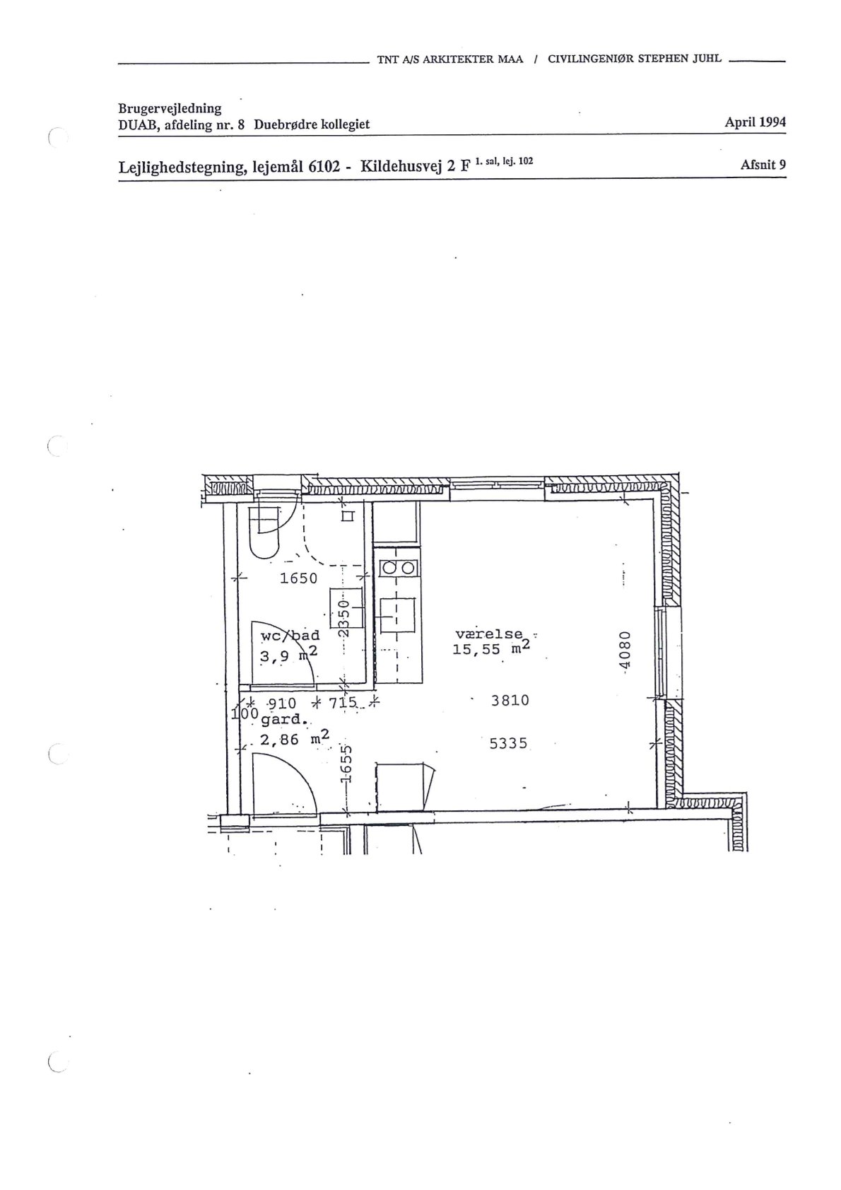
Kildehusvej 2F, 1, Lejl. 2, 4000 Roskilde, Denmark

Tenancy information

Address
Kildehusvej 2F, 1, Lejl. 2, 4000 Roskilde, Denmark
Tenancy number
5-408-9102
Takeover condition
As is
No rooms
1
Area
35
Rent determined
Balance rent
Children allowed
No

Facilities

  • Own toilet
  • Own shower
  • Own kitchen