arrow_back Back to building

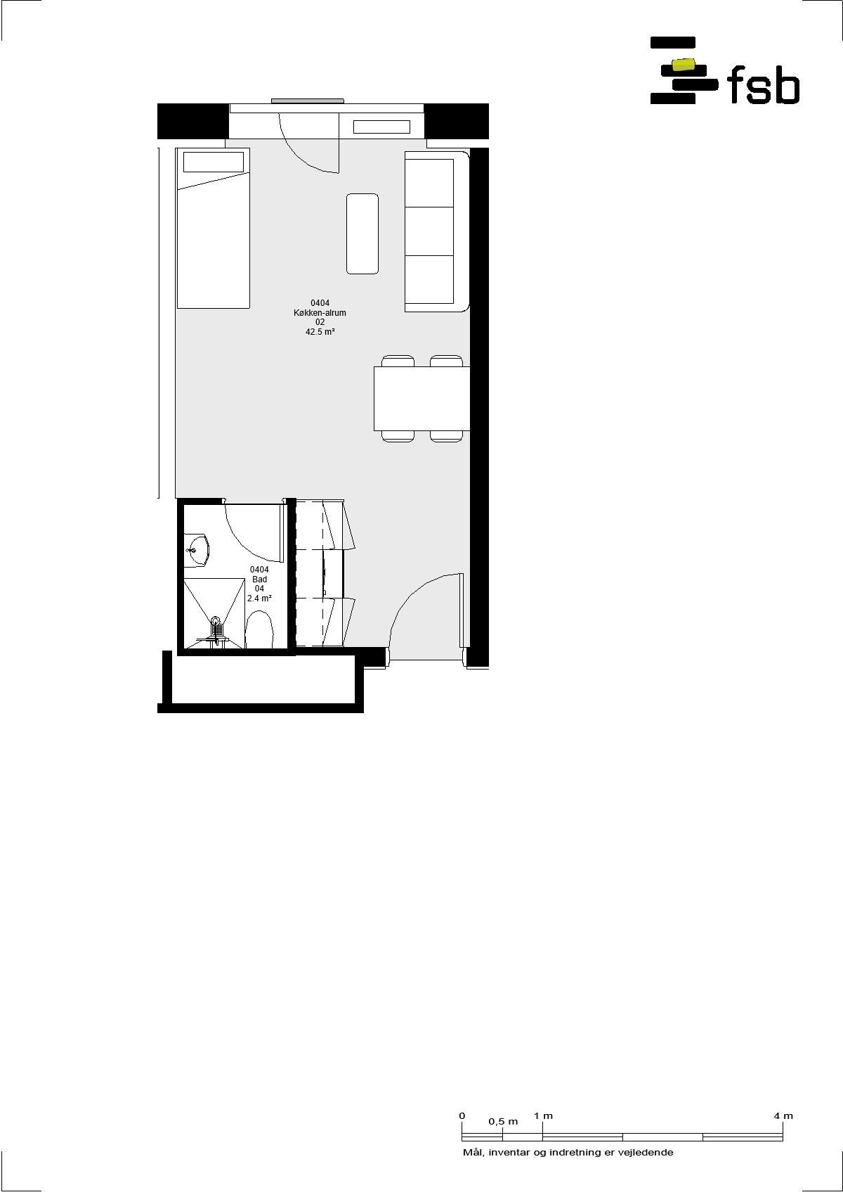
Dagmarsgade 9, 4, 404, 2200 København N, Denmark

Tenancy information

Address
Dagmarsgade 9, 4, 404, 2200 København N, Denmark
Tenancy number
401-194-404
No rooms
1
Area
37
Children allowed
No

Facilities

  • Own toilet
  • Own shower
  • Own kitchen
  • Refrigerator
  • Cooker hood
  • Storage room