arrow_back Back to building

Strandlodsvej 15B, 2, 2, 2300 København S, Denmark

Tenancy information

Address
Strandlodsvej 15B, 2, 2, 2300 København S, Denmark
Tenancy number
401-9378-13
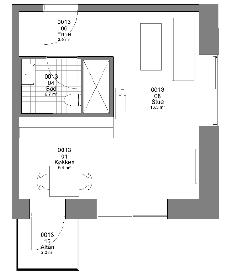
No rooms
1
Area
46
Children allowed
No

Facilities

  • Own toilet
  • Own shower
  • Own kitchen
  • Storage room
  • Balcony or terrace