arrow_back Back to building

Vesterfælledvej 92, 3, 19, 1799 København V, Denmark

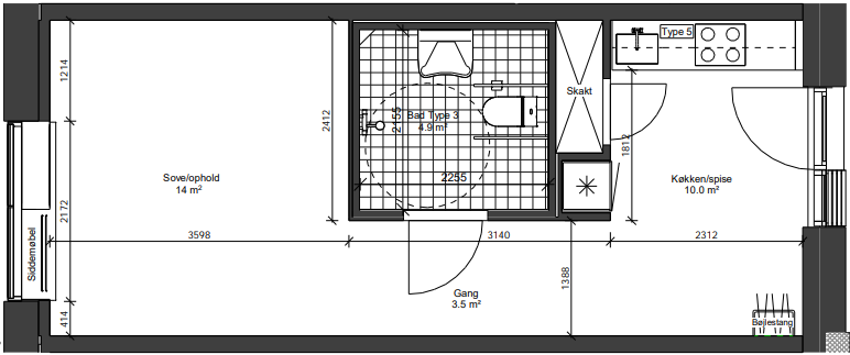
Tenancy information

Address
Vesterfælledvej 92, 3, 19, 1799 København V, Denmark
Tenancy number
401-109-117
No rooms
1
Area
50
Rent determined
Balance rent
Children allowed
No

Facilities

  • Own toilet
  • Own shower
  • Own kitchen
  • Cooker hood
  • Storage room