arrow_back Back to building

Halldór Laxness Vej 18, st., tv., 2300 København S, Denmark

Tenancy information

Address
Halldór Laxness Vej 18, st., tv., 2300 København S, Denmark
Tenancy number
401-153-431
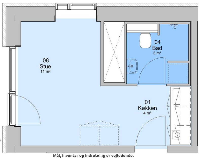
No rooms
1
Area
35
Children allowed
No

Facilities

  • Own toilet
  • Own shower
  • Own kitchen