search
Search
Search tenancies
Sign in
s.dk
To s.dk
arrow_back
Back to building
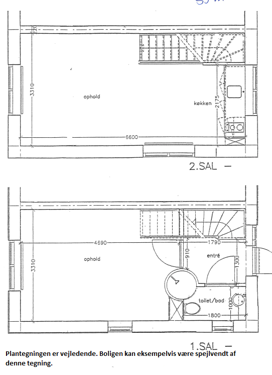
Hovmålvej 72D, 2300 København S, Denmark
Tenancy information
Address
Hovmålvej 72D, 2300 København S, Denmark
Tenancy number
5-421-7430
No rooms
2
Area
55
Children allowed
Yes
Facilities
Own toilet
Own shower
Own kitchen
Hovmålvej 72D, 2300 København S, Denmark
×