arrow_back Back to building

Hovmålvej 72C, 2300 København S, Denmark

Tenancy information

Address
Hovmålvej 72C, 2300 København S, Denmark
Tenancy number
5-421-7431
Takeover condition
As is
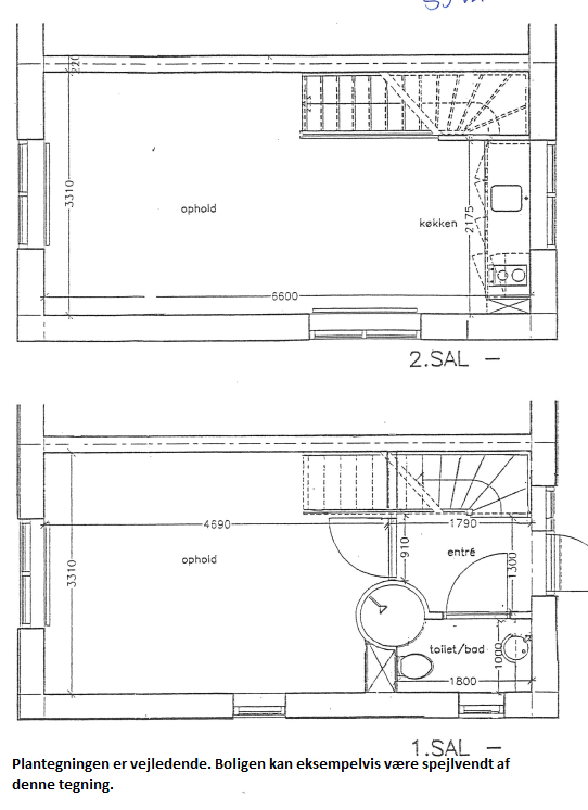
No rooms
2
Area
55
Rent determined
Balance rent
Children allowed
Yes

Facilities

  • Own toilet
  • Own shower
  • Own kitchen