arrow_back Back to building

Kapelvej 56, 2, 2, 2200 København N, Denmark

Tenancy information

Address
Kapelvej 56, 2, 2, 2200 København N, Denmark
Tenancy number
401-198-240
Takeover condition
As is
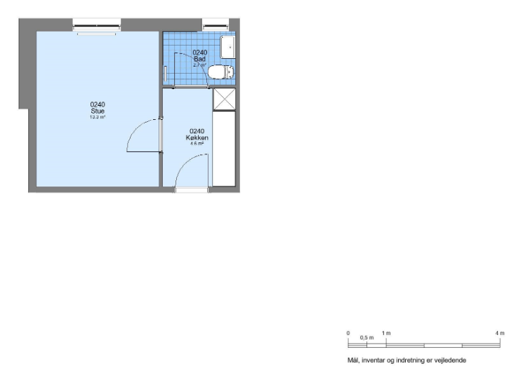
No rooms
1
Area
29
Rent determined
Balance rent
Children allowed
No

Facilities

  • Own toilet
  • Own shower
  • Own kitchen
  • Stove
  • Refrigerator
  • Storage room