arrow_back Back to building

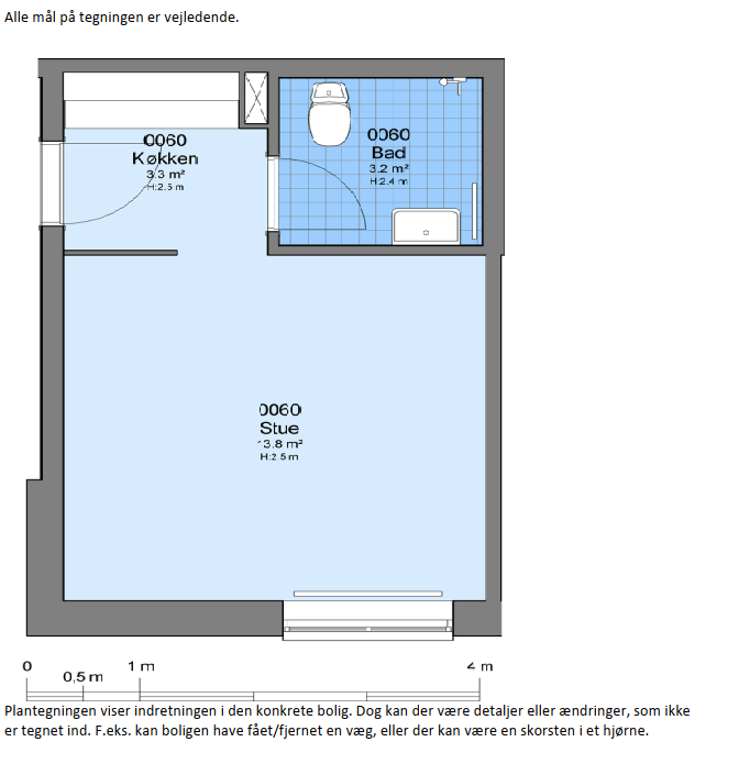
Bakkesvinget 83, st., 4, 4000 Roskilde, Denmark

Tenancy information

Address
Bakkesvinget 83, st., 4, 4000 Roskilde, Denmark
Tenancy number
402-240-60
Takeover condition
As is
No rooms
1
Area
29
Rent determined
Balance rent
Children allowed
No

Facilities

  • Own toilet
  • Own shower
  • Own kitchen
  • Refrigerator