arrow_back List buildings

Kunstner Kollegiet

Information on this building

Name
Kunstner Kollegiet
Municipality
Københavns Kommune
Approbation committee
CIU - Centralindstillingsudvalget
Jernbanegade 4 , 4.
1608 København V
phone: 33116444
email: info@ciu.dk
Description

Forventet indflytning mellem december 2025 og februar 2026

HELT NYRENOVERET OG OMBYGGET


Kollegiet består af 28 lejligheder og er så centralt beliggende i indre København, som det kan være med ca. 500 meter til Nørreport station og ca. 50 meter til Jorcks Passage og Strøget.

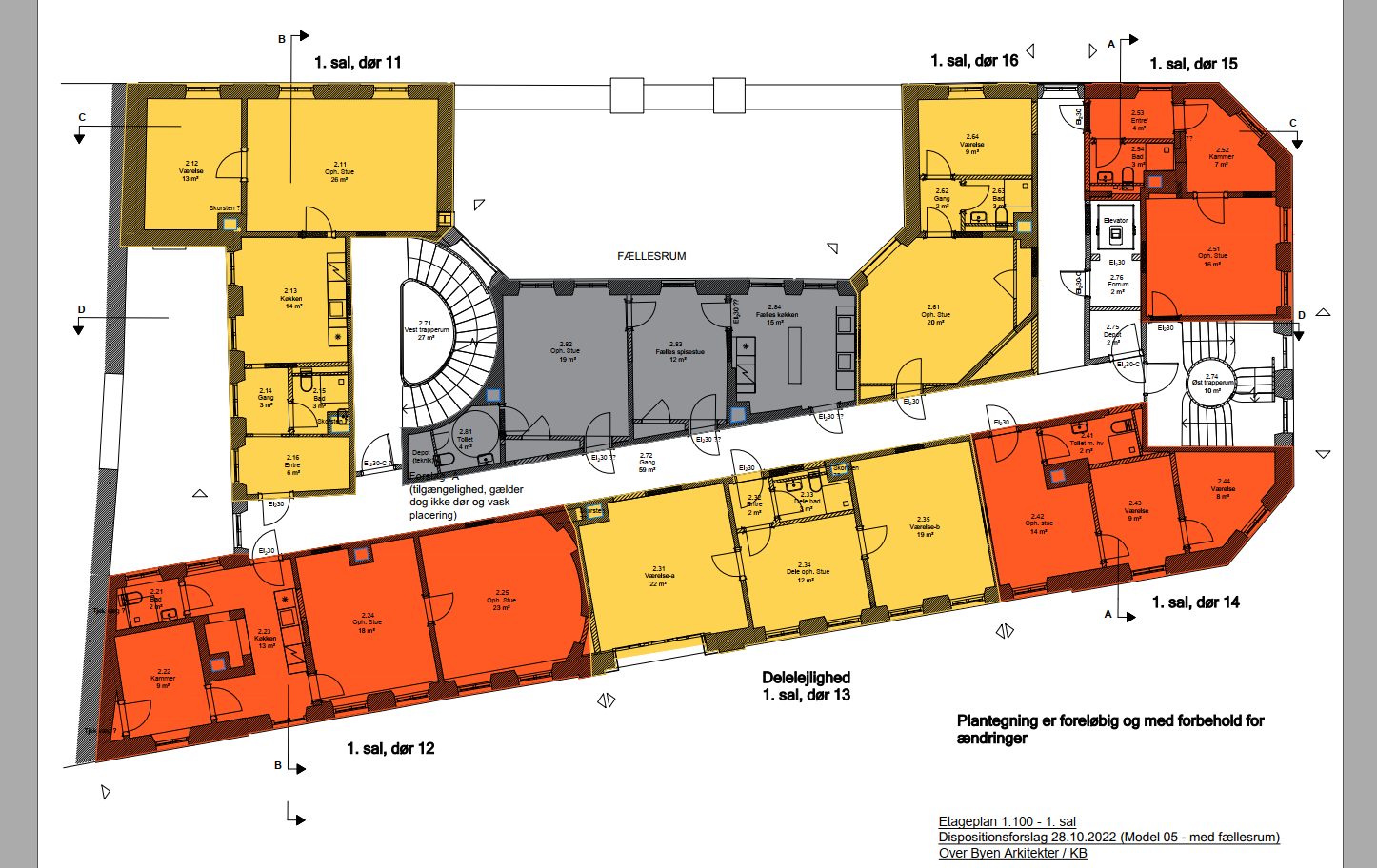
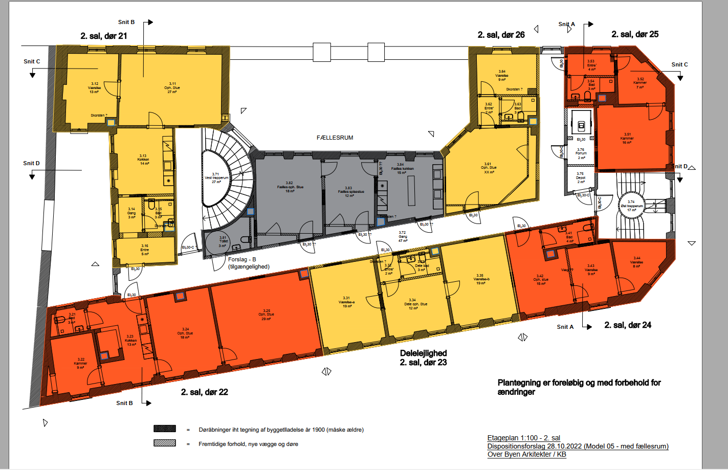
Kollegiets 28 lejligheder er fordelt fra stueetagen til 3. sal, hvor der på 1. – 3. sal er etableret fællesarealer i form af fælleskøkken og opholdsstue. Derudover er der et stort åbent loftsrum på 4. sal til større arrangementer og lignende. På kollegiet er der således rige muligheder for at være social, også på tværs af etagerne. 

Kollegiets 28 lejligheder er komplet ombyggede og er meget forskellige både i større og udformning hvor der er plads til den enkelte studerende på 36 m2 – 60 m2 og børnefamilien på 89 m2 – 120 m2 (bruttoareal).

Delelejligheder

Som noget nyt og anderledes tilbyder Kollegiet nu også 4 x delelejligheder (1 på hver etage), hvor der er én hoveddør med adgang til en lejlighed med fælles stue, toilet og bad, og hvor der i lejligheden er to separate værelser (lejligheder) med egen hoveddør, egen nøgle og postkasse. 

Kun delelejligheden i stuen har køkken, på de andre etager benyttes fælleskøkken på etagen.    

Under billeder her på ejendomssiden kan man orientere sig på plantegninger og på oversigtsarkene. Husk at orientere dig før du skriver dig op til boligerne. 

Facts:

OBS! Kollegiet er røgfrit, dvs. at der ikke må ryges på værelser og fællesarealer på Kunstnerkollegiet.

Husdyr er ikke tilladt.

Der må gerne bo børn og børnefamilier i 2 og 3 værelsesboligerne.

Boligerne er ikke egnet til bevægelseshandikappede i fx kørestol.

Der kan søges om boligsikring i de lejligheder, der har eget køkken og afløb, markeret med "eget køkken" i oversigten. 

Vand: Ikke inkluderet i huslejen, men der betales et a conto beløb hver måned.

Varme: Ikke inkluderet i huslejen, men der betales et a conto beløb hver måned

El: Ikke inkluderet i huslejen og der indgås egen aftale med el-leverandør

Antenne/Internet: Der er mulighed for at blive tilkoblet ejendommens fibernet (GlobalConnect) mod særskilt opkrævning.

Depositum: 2 måneders netto husleje

Vaskeri: Fællesvaskeri mod egen betaling

Idet Kunstnerkollegiets ejendom pt. fortsat er under indvendig ombygning, kan der hér på hjemmesiden ses plantegninger af de forventede indvendige forhold og udvendige fotos af ejendommen.

Vi gør opmærksom på, at størrelsen på lejlighederne er opgjort i bruttokvadratmeter, der angiver et areal, der er markant større end gulvarealet inde i boligen (årsagen er, at hver lejlighed bærer sin andel af Kollegiets fællesarealer). Ved delelejligheder skal der trækkes mellem 11 og 13 m2 fra til fællearealer. Ved alle andre lejligheder i ejendommen skal der trækkes 23 m2 fra til fællesarealer. 

Administrator
Vind Advokater
Facilities
  • elevator Yes
  • common room Yes
  • laundry Yes
  • smoke free Yes
Pets allowed
None cats allowed
None dogs allowed

Residence groups in this building